ROBLES 192

#Bioconstruccion #reusoagua #BTC#regeneracion #permacultura #vidanatural #naturaleza
#Bioconstruccion #reusoagua #BTC#regeneracion #permacultura #vidanatural #naturaleza
2016

ROBLES 192

Jurica, Querétaro

En este proyecto residencial nos enfrentamos a cómo resolver una vivienda plurifamiliar introduciendo sistemas sostenibles que pudieran independizar la vivienda de la energía y del agua, logrando una regeneración del entorno, así como usar block BTC de tierra compactada para minimizar el impacto de los materiales y lograr calidad en el proyecto. Algunas preguntas fueron las siguientes:

•¿Cómo organizar el programa en el terreno?

•¿Cómo proyectar nuestra casa sostenible desde el inicio del proyecto para conseguir una buena ventilación, iluminación en todos los espacios y una temperatura ideal sin el uso de energía auxiliar?

•¿Cómo organizar el espacio para tener una vivencia única?


Sostenibilidad

¿Sabías que el diseño bioclimático, la arquitectura vernácula, los materiales locales, la arquitectura del pueblo y de las tradiciones, la que responde a la cultura y al clima, ha existido siempre?

No estamos reinventando, sólo entendiendo...

Ingenierías- Estudio de factibilidad

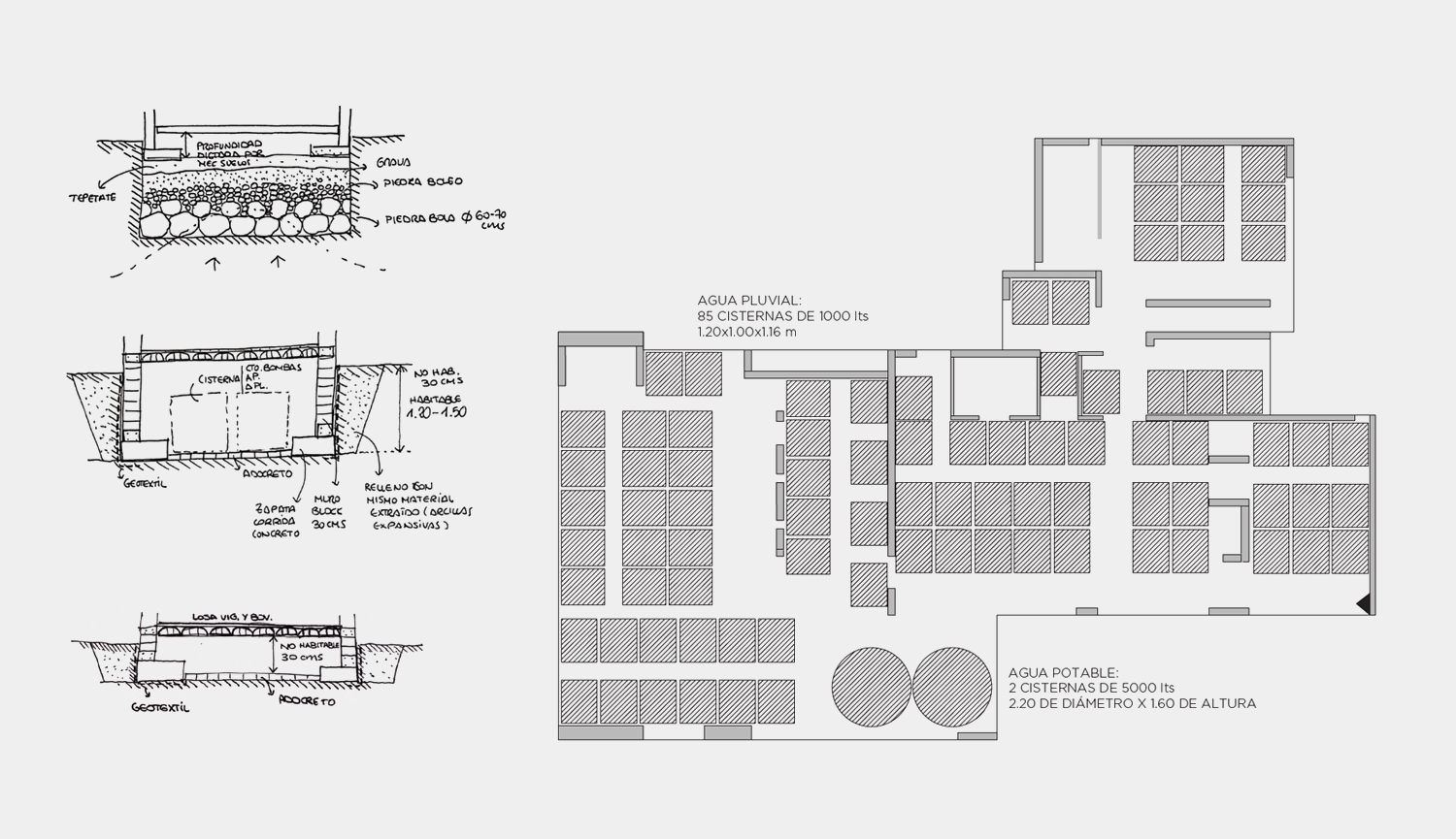
¿Qué pasa si en vez de excavar las arcillas expansivas y rellenar el suelo con una plataforma de tepetate, no usamos mejor esa excavación para albergar nuestras cisternas de almacenamiento de agua pluvial y poder ser independiente de la red de agua potable al 80%?

Materiales

Se presenta una comparativa de muros posibles para el proyecto, manifestando sus ventajas e inconvenientes así como su comportamiento térmico y costo de cada solución.

¿Podemos hacer entender a nuestro cliente la importancia de optar por una solución u otra?

Estudio de asoleamiento

Este estudio se vuelve fundamental para poder entender las condiciones interiores de iluminación, deslumbramiento y confort por ganancias solares.

Se realiza estudio de asoleamiento para entender la influencia del volado de la terraza en verano e invierno. Se estudia también la ubicación de la alberca y las sombras arrojadas de las edificaciones existentes, resultados que nos permiten concluir en la reubicación de la misma para evitar sombras.

Proyectos Relacionados

#prefabricados #modular #ceroresiduos #circularidad #ceromantenimiento #panelessolares #regeneración #Diseñodisruptivo #reutilización #seguridad

CAM 27

El Campanario, Querétaro

Vivienda plurifamiliar de 1030 m2 construidos. El sistema constructivo se concibe en piezas prefabricadas de concreto gris oscuro con el fin de agilizar tiempos de obra y aprovechar todas las ventajas de la construcción prefabricada. Se plantea un despiece de 154 piezas de 3 a 11.50 m de altura para muros y de 54 losas de 5 x 3 m para entrepiso y losa de azotea con todas las instalaciones ocultas desde fabricación en las piezas. Se realizan 2 propuestas de terraza y en base a los análisis de asoleamiento y de confort, se toma una decisión de proyecto. Se estudia la fachada oeste para entender cómo influye el sobrecalentamiento y cómo protegerla con la celosía propuesta.

#cabañas #sostenibilidad #regeneracion #naturaleza #verde #modular #bajahuellacarbono #parajenatural

ECT CABAÑAS

Tequisquiapan

Cabañas en cerrito Estación Bernal, Tequisquiapan. Siempre que comenzamos un proyecto, debemos hacernos algunas preguntas. En este caso, el emplazamiento nos obliga a hacernos la siguiente pregunta: ¿Cómo podemos INTEGRAR el proyecto con el menor impacto posible en el entorno natural donde se ubica? Ni con la mejor fotografía podríamos transmitir lo que se siente estar aquí. ¿Qué sensaciones nos gustaría experimentar en este lugar? •Protección •Refugio •Silencio •Confort •Seguridad •Descubrir •Desconexión •Conexión Las cabañas suelen evocar una sensación de aislamiento, privacidad y contacto directo con la naturaleza... La cabaña se define como una construcción vernácula en un entorno natural o rural hecha a partir de materiales propios del sitio. MATERIALIDAD •La materialidad planteada pretende eludir a la piedra del lugar como material principal. •Madera carbonizada en los muros exteriores que permiten cero mantenimiento gracias a la capa de carbón que protege la madera de los rayos UV y la intemperie y que cuenta con un proceso de fabricación natural in situ. •Cubiertas de zinc 100% reciclable Duradero (protección contra corrosión) Respetuoso con medio ambiente (50% menor consumo energético en fabricación que aluminio) Cero mantenimiento •Estructura y revestimientos interiores en madera: Material 100% renovable, reciclable. Mayor eficiencia energética. Atractiva, cálida, aislante, resistente. Absorbe C02 SISTEMA CONSTRUCTIVO Construcción prefabricada modular + plataformas+ muros de contención y elementos propios del lugar

#interiorismo #neuroarquitectura #iluminaciónnatural #comunidad #coworking

NUU COWORK

Jurica, Querétaro

Oficinas energy-Zero destinadas a coworking para pequeñas empresas relacionadas con temas de sostenibilidad y de innovación. Energía y agua suministrada por la plaza NUU, edificio energy Zero.

#sostenibilidad #fraccionamientosustentable #urbanismo #verde #parquesurbanos #carrilbici #sentir #saludinterior

ENTREVALLES RESIDENCIAL

Corregidora, Querétaro

Condominio residencial de 102 lotes frente a parque de Cimatario. Este proyecto nace de la idea de ser un lugar que fomenta la biodiversidad, respeta la fauna y flora del área protegida colindante del CIMATARIO. Lugar sostenible para vivir, verde, rodeado de naturaleza, con andadores peatonales que conectan todos las amenidades del fraccionamiento. Se genera una guía de prototipos de fachada, protecciones solares, % de acristalamiento para lograr el confort la mayor parte del año sin recurrir a un sistema de climatización. Viviendas con doble fachada, donde los árboles tienen una función fundamental: arbolar las principales vías de acceso, dar privacidad de unos lotes frente a otros, generar en las áreas traseras de las casas espacios verdes peatonales que permitan independizar las rutas caminando de las rutas vehiculares. La parte urbana del macrolote fue un requisito imprescindible para poder lograr la movilidad sostenible en todo el conjunto. Carriles bicis conectan cada una de las viviendas con el parque aledaño de ENTREVALLES y con el parque-área natural protegida del CIMATARIO. El respeto por la naturaleza, el silencio y la conciencia medioambiental como estilo de vida se vuelve fundamental en este lugar. Respeto por el agua, y por la energía. Se pretende gestionar el agua potable con el agua tratada del fraccionamiento e introducir un sistema de generación de energía limpia por medio de paneles solares. Recordemos que donde hay naturaleza, hay paz, hay salud y regresamos a nuestra esencia. El lugar donde crecemos lo es todo para regenerarnos como personas.

#regeneracion #permacultura #vidanatural #naturaleza

JOYA 120

Huertas La Joya, Querétaro

Proyecto residencial regenerativo ubicado en Querétaro. En este proyecto para una familia de 4 ocupantes, buscamos proporcionar un lugar para conectar con la naturaleza, respetar su modo de vida basado en la permacultura, cultivando sus propios alimentos y minimizando el impacto de las emisiones con una propuesta basada en la bioconstrucción. Los sistemas de recolección de agua pluvial y el agua de pozo permiten ser parte del año independientes en agua potable. Incorporamos baños secos y la realización de composta para posterior uso en el huerto y jardín, así como la utilización de biofiltros que permiten limpiar las aguas grises y canalizarlas filtradas a las áreas verdes, y por ende, a las capas freáticas. cerrando el círculo de regeneración. Sólo así conseguimos usar la naturaleza como nuestro hogar. Vivir en paz y armonía, descubrir, despertar cada mañana los 5 sentidos, conectar con el entorno, y sobre todo, sentir. "El secreto de la creación de las mejores personas, radica en crecer al aire libre y en comer y dormir con la tierra".- Walt Whitman

#energyZero #sostenibilidad #comunidad #mansursolar #caeq integratedDesign #

NUU Energy Zero

Querétaro, Qro

La idea generadora del proyecto PLAZA NUU es convertir este espacio de la ciudad de Querétaro en un referente arquitectónico de un edificio Energy Zero. Es crear arquitectura sostenible y bioclimática. 100% Energy zero. 75% Ahorro de agua potable. 70% Reuso aguas grises y negras. 100% Reuso agua potable. 0% Consumo aire acondicionado. 0% Consumo calefacción